
| Borsó Attiláné | |
| (10:00-22:00) | |
| @ | üzenet írása |
| Levél | |
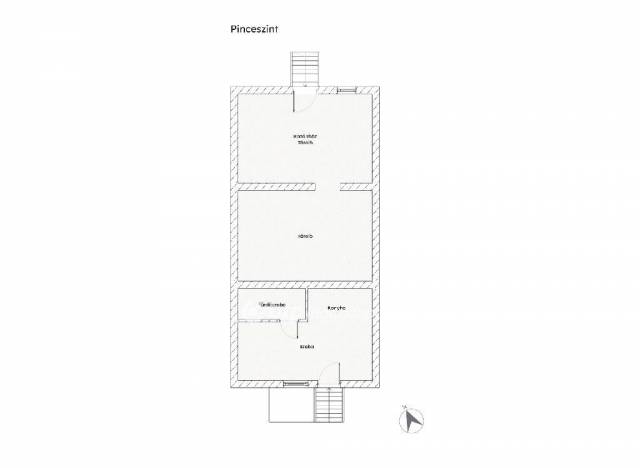
Eladó Ház, Levél Eladó ingatlan Levélen, kiváló befektetési lehetőség! Fedezze fel ezt a különleges házat Levélen, egy 1073 m?-es telken! Az ingatlanon két ház található, amelyek fantasztikus lehetőségeket kínálnak, egy karnyújtásnyira az osztrák határtól! Főbb jellemzők: - A nagyobbik ház 110m2, 3 szintes, 10 szobával rendelkezik. Szintenként külön bejárat! - Minden szinten konyha és fürdőszoba található, amely kényelmet biztosít a lakók számára. - Jelenleg a szobák albérletként ki vannak adva, így az ingatlan azonnali bevételt generál. - A kisebbik ház újszerű, nemrég lett készen, nettó 42m2. A házban 1 hálószoba található, gardrób helyiséggel. - Gyönyörű amerikaikonyhás nappalival és fürdőszobával rendelkezik. A házhoz tartozik egy jelenleg műhely/raktárként funkcionáló helyiség, WC-vel, 22m2. Igény esetén akár lakószobává is átalakítható! - Szépen rendezett telek, fúrt kúttal! Ezenkívül egy kis halastó és melléképület is található. - Fűtése vegyestüzelésű kazánnal és gázkazánnal egyaránt megoldható! A kisebbik ház külön is eladó, a telek megosztható. Ár: 41 500 000 Ft Ez az ingatlan nemcsak lakhatási lehetőséget, hanem kiváló befektetési lehetőséget is kínál vállalkozók és befektetők számára. A nagyobb ház multifunkcionális felhasználásra is alkalmas, akár panzióként vagy hosszú távú bérbeadás céljára. Ajánlom ezenkívül nagycsaládosoknak, illetve alkalmas két generáció együttélésére is. Ár: 120 000 000 Ft Ne hagyja ki ezt a remek ajánlatot! Hívjon most, és egyeztessen időpontot a megtekintésre! Az OTP Ingatlanpont teljes körű ügyintézéssel áll az eladók és a vevők rendelkezésére! Az OTP csoport tagjaként, ügyfeleinknek lehetőségük van az OTP Bank által nyújtott kedvező hitel-, kamat- és díjkedvezmények igénybevételére. Az adás-vétel folyamatának megkönnyítése érdekében szakképzett kollégáink, ügyvédeink gyorsított ügyintézéssel állnak szíves rendelkezésükre. Megvásárlása számtalan lehetőséget tartogat Önnek és családjának. Igény szerint díjmentes, teljes körű hitel ügyintézést biztosítunk, egyedi kedvezményekkel az OTP Csoport szakértelmével. Felkeltettem érdeklődését keressen alábbi elérhetőségemen. +36709078007 Referencia szám: M288723-MA